Property Details
Property Details
- Gulf Coast: 225009405
- Zip: 33957
- Subdivision: Dunes At Sanibel Island
- Neighborhood: DUNES AT SANIBEL ISLAND
- Property SubType: Attached
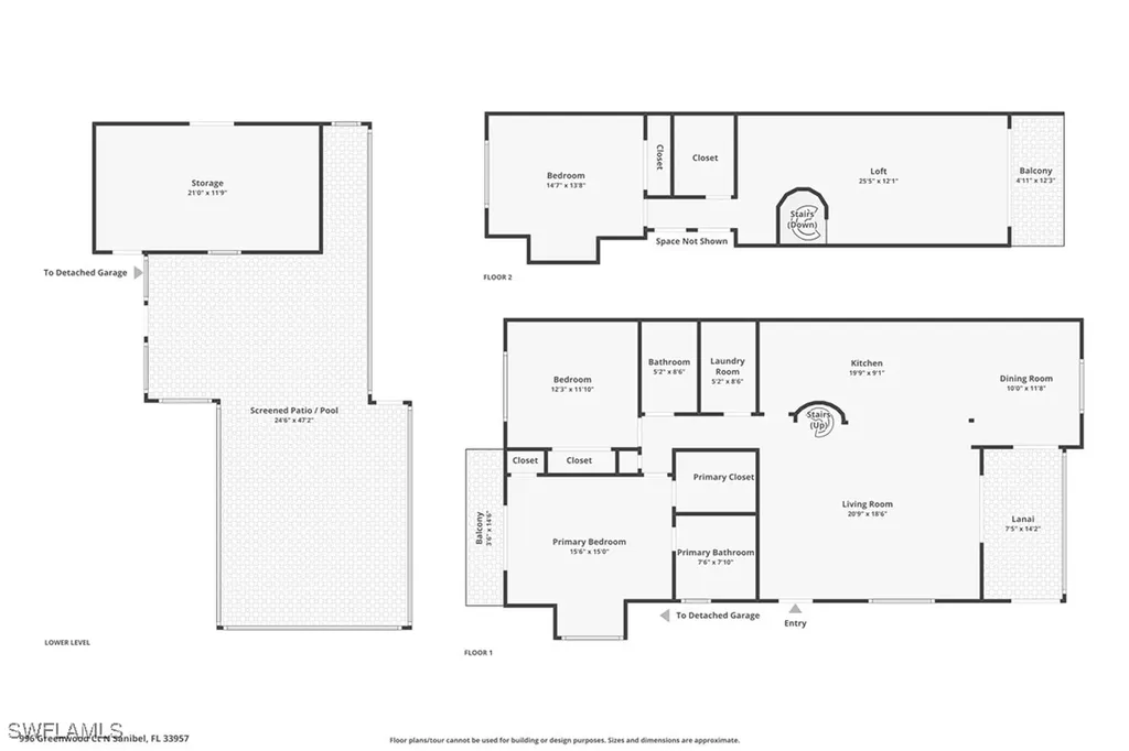
- Square Feet: 1,741
- Building Area Total: 3,586
- Stories: 2
- Roof: Shingle
- Building Construction: Other, Wood Frame
- Taxes: $7,317
- Year Built: 1981
Interior Features
Interior Features
- Bedrooms: 3
- Room Type: Great Room, Screened Porch
- Bathrooms: 3
- Full Baths: 3
- Laundry Features: Inside
- Flooring: Carpet, Tile
Exterior Features
Exterior Features
- Lot Description: Rectangular Lot, Dead End
- Property View Description: Landscaped
- Patio And Porch Features: Lanai, Open, Patio, Porch, Screened
Utilities and Appliances
Utilities and Appliances
- Appliances Included: Dryer, Dishwasher, Disposal, Ice Maker, Microwave, Range, Refrigerator, RefrigeratorWithIce Maker, Washer
Community
Community
- Community Features: Golf, Non-Gated, Tennis Court(s)
- Parking Features: Attached, Covered, Garage, Two Spaces, Garage Door Opener
- Amenities: Beach Rights, Beach Access, Clubhouse, Golf Course, Pool, Putting Green(s), Restaurant, Tennis Court(s), Management
- Other Amenities: Pool, Golf, Tennis
- Pets: Yes












































Based on information submitted to Gulf Coast as of February 16, 2026 . All data is obtained from various sources and has not been, and will not be, verified by broker or Gulf Coast. All information should be independently reviewed and verified for accuracy. Properties may or may not be listed by the office/agent presenting the information. NOTICE: Many homes contain recording devices, and buyers should be aware they may be recorded during a showing.
Socials